Sold

Displaying: of 14

Agent Details

Geoff Kaplan

Make it yours! A Great DUPLEX in Morayfield.

Sold for $930,000

1 & 2 /16 Amaroo Street, Morayfield

3
3
4

Profile

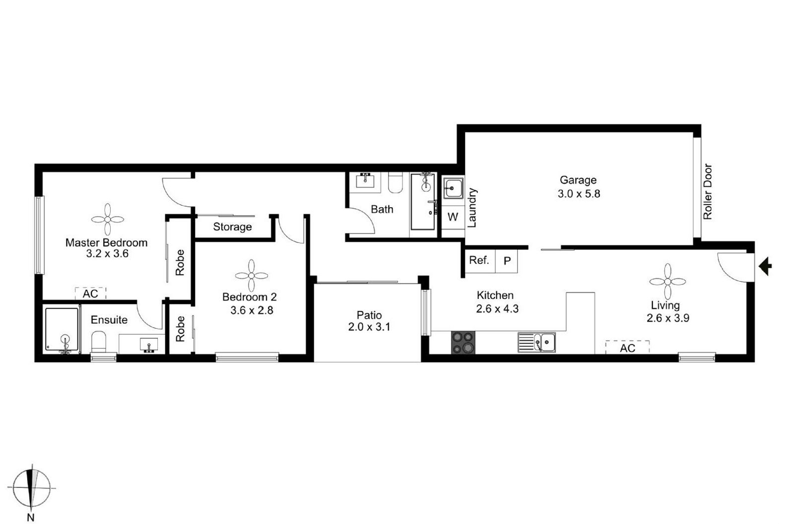
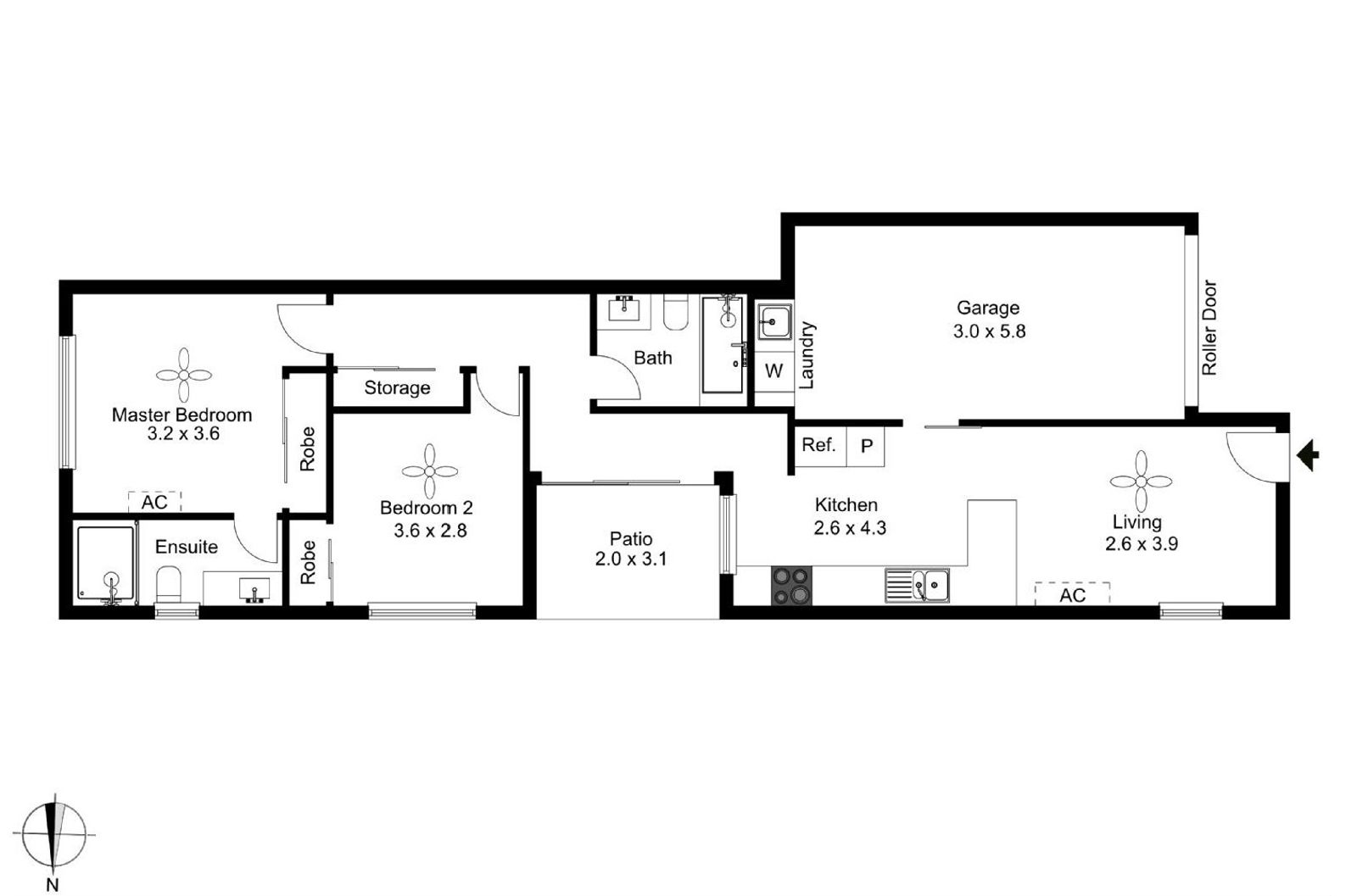
This immaculate duplex is located on a quiet street, close to transport, schools, and excellent shopping.
Features a simple floor plan with an ambience of comfort and quality that flows through the open design. A separate living area with a modern open-plan kitchen and dining, creating a balanced home that promotes comfort and functional living.
The modern kitchen features quality appliances, plus a dishwasher and ample storage. Other extras include ceiling fans in all three bedrooms with built-ins, a master suite with a walk-in robe and ensuite. Single car garage with an open car park/visitor space also available.
If location is important to you, this is just a stone's throw from the centre of Morayfield.
Some features of 1 and 2 / 16 Amaroo Street, Morayfield, include:
3 Bedrooms (2 x bed) (1 x bed)
Master with a Walk-in robe and Ensuite
2 Bathrooms
1 Car Garage
Living Room
Dining Area
Modern Kitchen with Dishwasher
Ceiling Fans
Air Conditioning
Low Maintenance Block
Visitors' Carparking behind each garage.
Fully fenced.
Excellent tenants paying $920/week
This amazing duplex, only a few years old, will suit many situations, including a separate work area, a parents' retreat, or simply keep as a rental returning extremely well.
Please call Geoff for a closer look at this Gem.

Features

21579189
Property ID
3
Bedrooms
3
Bathrooms
2
Garage
252 sqm approx.
Land Size
2
Car Spaces
Remote Garage

Send Enquiry

Your Details
Your Enquiry
  1. Please describe how we can be of assistance to you.

  2.  

    Would you like to join our mail list?

Submit
Get in touch!